BHD 454,779
Land Light Industries Areas (LD)
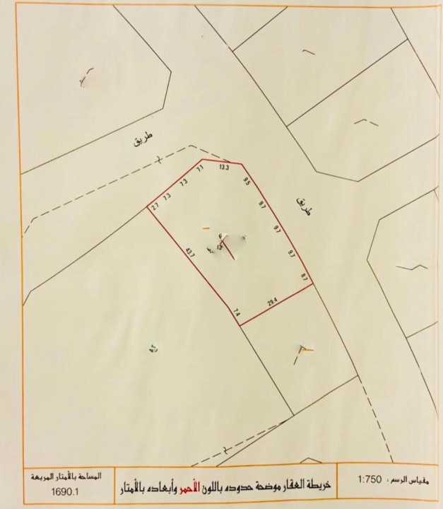
Salmabad
Aiysha Alharasi
45 ID
SaleProperty For
25Price (ft²)
18,191.2 Size S.Q.F
1,690 Size S.Q.M
Contact Information
Mohmmed Al sheikh
+97333699341
ayshaalmouj@gmail.com
Land For Sale In Salmabad
BHD 169,314.5
683.9
23
B4
33699341